Giới thiệu về không gian pha chế
Trong mỗi quán cà phê, trà sữa hay nhà hàng, không gian pha chế đóng vai trò cực kỳ quan trọng, không chỉ đơn thuần là nơi chế biến đồ uống mà còn là điểm nhấn trong thiết kế tổng thể của quán. Một không gian pha chế được thiết kế hợp lý và chuyên nghiệp không chỉ nâng cao trải nghiệm của khách hàng mà còn giúp quá trình phục vụ diễn ra nhanh chóng và hiệu quả hơn.
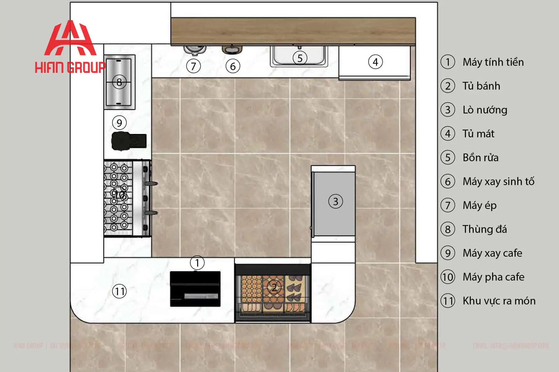
Các khu vực chức năng trong không gian pha chế
Để tối ưu hóa công năng của khu vực pha chế, các nhà thiết kế thường chia không gian này thành nhiều khu vực chức năng khác nhau. Dưới đây là một số khu vực chính mà bạn có thể tham khảo:
Khu vực lưu trữ
Khu vực lưu trữ là nơi chứa đựng tất cả nguyên liệu và dụng cụ cần thiết cho quá trình pha chế. Thông thường, khu vực này sẽ bao gồm các tủ lạnh, giá kệ, và các khay chứa đồ. Việc thiết kế khu vực lưu trữ một cách hợp lý giúp nhân viên dễ dàng tìm kiếm và lấy nguyên liệu một cách nhanh chóng.
Khu vực rửa
Khu vực rửa là nơi các dụng cụ và thiết bị pha chế được làm sạch sau khi sử dụng. Khu vực này cần được trang bị bồn rửa, thùng rác và các thiết bị vệ sinh khác để đảm bảo an toàn vệ sinh thực phẩm. Việc duy trì một khu vực rửa sạch sẽ giúp tránh được các vấn đề liên quan đến sức khỏe của khách hàng.
Khu vực thao tác ướt
Khu vực thao tác ướt là nơi mà nhân viên pha chế thực hiện các thao tác chế biến đồ uống như pha cà phê, trà, sinh tố… Khu vực này thường được trang bị các thiết bị như máy xay, máy pha cà phê, và các dụng cụ khác. Thiết kế khu vực thao tác ướt cần chú ý đến việc bố trí hợp lý để đảm bảo nhân viên có thể di chuyển và làm việc một cách thoải mái.
Khu vực phục vụ
Khu vực phục vụ là nơi nhân viên đưa đồ uống đến tay khách hàng. Khu vực này cần được thiết kế sao cho thuận tiện cho việc di chuyển cũng như dễ dàng để khách hàng có thể nhìn thấy quá trình pha chế. Một khu vực phục vụ hấp dẫn sẽ thu hút thêm nhiều khách hàng quay lại.
Lợi ích của việc thiết kế không gian pha chế hợp lý
Việc thiết kế không gian pha chế khoa học không chỉ tạo ra một môi trường làm việc thoải mái cho nhân viên mà còn mang lại nhiều lợi ích cho quán. Dưới đây là một số lợi ích nổi bật:
Tăng hiệu suất làm việc
Một không gian pha chế được bố trí hợp lý giúp nhân viên tiết kiệm thời gian trong quá trình tìm kiếm và chuẩn bị nguyên liệu. Nhân viên có thể thực hiện công việc của mình một cách nhanh chóng và hiệu quả, từ đó tăng năng suất làm việc.
Nâng cao trải nghiệm khách hàng
Khách hàng cũng sẽ cảm nhận được sự chuyên nghiệp từ không gian pha chế. Khi nhân viên làm việc một cách nhanh chóng và chuyên nghiệp, khách hàng sẽ có trải nghiệm tốt hơn, từ đó gia tăng khả năng họ quay lại quán trong tương lai.
Đảm bảo vệ sinh an toàn thực phẩm
Vệ sinh an toàn thực phẩm là một yếu tố rất quan trọng trong ngành thực phẩm và đồ uống. Một không gian pha chế được thiết kế hợp lý giúp việc vệ sinh và bảo quản nguyên liệu diễn ra thuận lợi hơn, từ đó đảm bảo sức khỏe cho khách hàng.
Tạo dấu ấn thương hiệu
Một không gian pha chế đẹp mắt và chuyên nghiệp cũng góp phần tạo dựng thương hiệu cho quán. Khách hàng sẽ nhớ đến quán không chỉ vì đồ uống ngon mà còn vì không gian và cách phục vụ chuyên nghiệp.
Một số lưu ý khi thiết kế không gian pha chế
Để tạo ra một không gian pha chế hoàn hảo, có một số lưu ý mà bạn cần cân nhắc:
Chọn chất liệu phù hợp
Chất liệu là một yếu tố rất quan trọng trong thiết kế không gian pha chế. Nên sử dụng các vật liệu bền bỉ, dễ vệ sinh và có tính thẩm mỹ cao. Các chất liệu như inox, gỗ và đá tự nhiên thường được ưu tiên lựa chọn.
Bố trí hợp lý
Bố trí các khu vực chức năng trong không gian pha chế sao cho hợp lý. Nên sắp xếp các khu vực lưu trữ, rửa và thao tác ướt gần nhau để nhân viên có thể di chuyển dễ dàng. Việc này không chỉ giúp tiết kiệm thời gian mà còn đảm bảo an toàn trong quá trình làm việc.
Tạo không gian mở
Nếu có thể, hãy tạo ra không gian mở cho khu vực pha chế. Điều này không chỉ giúp tạo cảm giác thoải mái cho nhân viên mà còn thu hút sự chú ý của khách hàng. Khi khách hàng thấy quá trình chế biến đồ uống, họ sẽ cảm thấy an tâm hơn về chất lượng của sản phẩm.
Đừng quên trang trí
Cuối cùng, việc trang trí không gian pha chế cũng rất quan trọng. Hãy sử dụng các yếu tố trang trí như đèn chiếu sáng, cây xanh, hay các bức tranh nghệ thuật để tạo ra một không gian sống động và thu hút hơn.
Kết luận
Tóm lại, không gian pha chế là một phần không thể thiếu trong mỗi quán cà phê hay trà sữa. Việc thiết kế không gian này không chỉ giúp nâng cao trải nghiệm của khách hàng mà còn giúp tăng hiệu suất làm việc của nhân viên. Hãy chú ý đến các khu vực chức năng, lựa chọn chất liệu phù hợp và tạo không gian mở để tạo ra một không gian pha chế hoàn hảo.
















