Có thế nói khi bạn đã có cho mình một thiết kế thi công nội thất shop thời trang hoàn hảo, thu hút, đẹp và ấn tượng chính là chìa khóa vàng giúp bạn mở ra két sắt giá trị từ ngành kinh doanh thời trang này.

Để có được một thiết kế thi công nội thất shop thời trang hoàn hảo làm chìa khóa kinh doanh của bạn thì bạn cần nên nắm bắt tốt cho mình những mẫu thiết kế nội thất, đơn vị nào là uy tín trong thiết kế thi công nội thất shop thời trang để tạo nên và đạt được những mong muốn, nguyện vọng đó.
Không gian thiết kế thi công nội thất shop thời trang đẹp
Mẫu thiết kế nội thất shop thời trang
Thiết kế nội thất chính là một trong những yếu tố tạo nên sức hút cho shop thời trang của bạn.
1. Thiết kế shop thời trang nữ
Trước khi có được cho mình một thiết kế bạn cần xác định đối tượng khi hàng ở đây mà bạn muốn nhắm đến chính là các khách hàng nữ. Chỉ có như vậy bạn mới có thể trang trí nội thất shop thời trang với những phụ kiện đi kèm hợp lý và hợp thời trang, chuẩn gu.
<<< Xem thêm: Thiết kế shop thời trang
Thiết kế nội thất dành cho shop thời trang nữ
Sau khi định hình và chọn được loại quần áo chuyên biệt để kinh doanh cho cửa hàng của mình thì bước tiếp theo bạn có thể linh động để lựa chọn các loại phụ kiện đi kèm như: mũ nón, thắt lưng, túi xách, cài áo để phối thành bộ.
Không gian trưng bày trong thiết kế thi công nội thất shop thời trang nữ
Tóm lại với mục đích nhắm vào đối tượng chính là phái nữ, thiết kế thi công nội thất shop thời trang của bạn cần phải sở hữu các concept phù hợp với các cô gái. Hơn nữa, thiết kế của bạn phải liên tục cập nhật những xu hướng của sản phẩm mới nhất để bày bán để nhằm tạo nên sự mới mẻ và dễ dàng thu hút khách hàng hơn.
Mẫu thiết kế thi công nội thất shop thời trang nữ đẹp, thu hút và sang trọng
2. Thiết kế nội thất shop thời trang nam
Khác với các thiết kế nội thất shop thời trang nữ, thường tập trung nhiều hơn vào các loại quần áo, kiểu dáng, đối với thiết kế dành cho shop thời trang nam lại thường có thiết kế khá đơn giản và ít tốn diện tích.
Không gian thiết kế shop thời trang nam đẹp, quý phái và sang trọng
Bạn chỉ cần biết cách sắp xếp không gian và bố cục gọn gàng, ngăn nắp, chỉ cần như vậy là bạn đã có thể ghi điểm rất nhiều trong mắt khách hàng. Bạn cần đặc biệt tạo được không gian thiết kế sao cho toát lên hết được sự mạnh mẽ, quý phái, lịch lãm và sang trọng cho khách hàng.
Không gian thiết kế nội thất dành cho shop thời trang nam
Theo như kinh nghiệm mà Bluecons nắm bắt được thì nhu cầu của khách hàng nam khác xa so với nữ nhưng không vì thế mà không nhìn ngắm hay thẩm mỹ nên trong thiết kế thi công nội thất shop thời trang của mình bạn nên chọn cho mình những phong cách tối giản nhưng tinh tế, không cần phải bày biện quá nhiều mặt hàng gây rối mắt, đó là những kiểu nội thất shop quần áo khiến khách hàng nam yêu thích.
Mẫu thiết kế nội thất shop thời trang nam cuốn hút và ấn tượng
3. Mẫu thiết kế nội thất thời trang trẻ em
Hiện nay, vấn về thời trang của trẻ luôn là vấn đề quan tâm của các bậc phụ huynh, họ luôn muốn mang đến cho con mình khoác lên những bộ quần áo, bộ cánh đẹp nhất. Vì vậy, việc lựa chọn thiết kế nội thất cho shop thời trang trẻ em cũng hết sức quan trọng.
Mẫu thiết kế shop thời trang trẻ em đẹp
Bạn cần phải lưu ý rằng với những thiết kế shop thời trang trẻ em thì không nên thiết kế những giá hàng ở vị trí quá cao hoặc ở vị trí khuất tầm mắt. Điều đó sẽ khiến các bé không nhìn thấy được những bộ đồ mình yêu thích.
Không gian thiết kế shop thời trang trẻ em
Chính các mẫu thiết kế nội thất riêng dành cho mỗi loại shop, mỗi phong cách giúp bạn định hình cụ thể đối tượng khách hàng từ đó giúp bạn dễ dàng lên ý tưởng, lựa chọn thiết kế thi công phú hợp nhất.
Tham khảo thêm: thi công shop thời trang
Đơn vị thiết kế thi công nội thất shop thời trang uy tin, chuyên nghiệp và đảm bảo chất lượng tại Thành phố Hồ Chí Minh
Có thể với sự quan trọng của thiết kế thi công nội thất trong một shop thời trang đã tạo nên những như cầu cấp bách và khó khăn nhất định trong việc lựa chọn của các chủ cửa hàng. Để có thể có được cho mình một không gian kinh doanh shop thời trang đẹp và thu hút không phải là công việc đơn giản. Chính vì vậy, các nhà đầu tư, chủ cửa hàng, chủ shop thời trang luôn cần có cho mình một sự sáng suốt trong việc lựa chọn đơn vị hợp tác thiết kế thi công nội thất shop thời trang của mình.
Mẫu thiết kế thi công nội thất shop thời trang đẹp và chất lượng
- Công ty chuyên thiết kế và thi công nôi thất shop thời trang tại TPHCM – Bluecons
Bluecons luôn là đối tác đáng tin cậy của khách hàng, gương mặt chỉ điểm gọi tên khi nhắc đến nhà thiết kế thi công nội thất shop thời trang tại khu vực thành phố Hồ Chí Minh và các vùng lân cận.
Mẫu bố trí không gian thiết kế nội thất shop thời trang
Bluecons với đội ngũ kiến trúc sư nhiều năm kinh nghiệm trong nghề và cả đội ngũ thi công chuyên nghiệp luôn luôn thấu hiểu đầy đủ tâm tư, nguyện vọng và khó khăn của khách hàng. Với phương châm “chất lượng hơn số lượng” chúng tôi mong muốn mang lại cho bạn những giá trị tốt nhất.
- Quy trinh tư vấn và thiết kế thi công nội thất shop thời trang của Bluecons
– Tư vấn thiết kế thi công đây là quá trình trao đổi với khách hàng về các yêu cầu và nguyện vọng, ý tưởng thiết kế phù hợp giữa quầy bar so với tổng thể thiết kế quán.
– Khảo sát mặt bằng, đo đạc và tư vấn trực tiếp, cụ thể hơn.
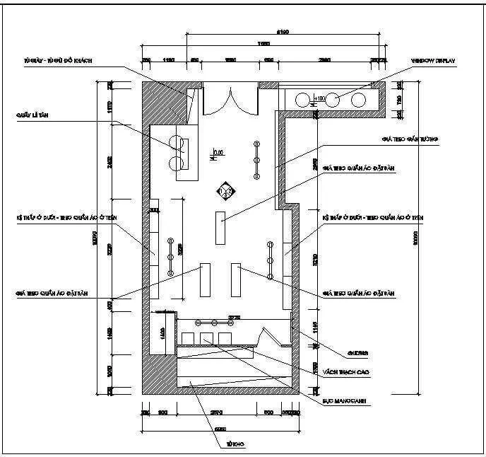
– Lên phương án bản vẽ thiết kế mặt bằng, bảng vẽ 2D, 3D.
Bản vẽ thiết kế thi công nội thất shop thời trang
– Triển khai chi tiết cụ thể bản vẽ thiết kế
– Hoàn thiện hồ sơ thiết kế và thực hiện phương án thi công theo tiến độ.
– Bàn giao và hoàn thiện dự án.
Hoàn thiện thi công shop thời trang
- Tại sao nên chọn Bluecons cho thiết kế thi công nội thất shop thời trang của bạn?
– Phí thiết kế thi công cạnh tranh, có chính sách giảm phí khi khách hàng đăng ký thiết kế, thi công trọn gói.
– Đội ngũ kiến trúc sư, nhân viên thi công chuyên nghiệp đáp ứng đầy đủ những yêu cầu của khách hàng dù khắc khe nhất.
– Chế độ bảo hành, chính sách hậu mãi tốt.
Thông tin liên hệ:
Những công trình mà Bluecons thực hiện luôn mang một phong cách riêng biệt, không đại trà bởi bản thiết kế là sự kết hợp hài hoà giữa ý tưởng của khách hàng và sự góp ý chân thành, sáng tạo nhất của đội ngũ kĩ sư để tạo nên một công trình hoàn hảo nhất cho quý khách hàng. Công ty Bluecons là công ty chuyên về thi công xây dựng các thiết kế về nội thất văn phòng từ các vật liệu tự nhiên, các kiểu dáng và phong cách phù hợp với nhu cầu của khách hàng.
Thiết Kế Thi Công Nội Thất Shop Thời Trang – Tạo Dựng Không Gian Đẳng Cấp
Thiết Kế Nội Thất Shop Thời Trang: Xu Hướng Mới Nhất Hiện Nay #ThiCongNoiThat
Tại Sao Thi Công Nội Thất Là Yếu Tố Quan Trọng Trong Kinh Doanh Thời Trang? #ThietKeNoiThat
Các Bước Thi Công Nội Thất Shop Thời Trang Chuyên Nghiệp #ShopThoiTrang
Trong một thế giới cạnh tranh khốc liệt như hiện tại, việc sở hữu một không gian shop thời trang đẹp và chuyên nghiệp không chỉ giúp thu hút khách hàng mà còn làm nổi bật thương hiệu của bạn. Để đạt được điều này, thiết kế và thi công nội thất là yếu tố then chốt không thể thiếu.
Lợi Ích/Ưu Điểm Của Việc Thiết Kế Nội Thất Shop Thời Trang
- Tăng Tính Thẩm Mỹ: Một không gian được thiết kế đẹp mắt sẽ tạo ấn tượng ngay từ cái nhìn đầu tiên.
- Khẳng Định Thương Hiệu: Thiết kế nội thất phù hợp giúp khách hàng dễ dàng nhận diện thương hiệu.
- Tối Ưu Không Gian: Thiết kế hợp lý giúp sắp xếp sản phẩm hợp lý và nâng cao trải nghiệm mua sắm.
- Tăng Doanh Thu: Không gian đẹp sẽ kích thích khách hàng chi tiêu nhiều hơn.
Vật Liệu/Thông Số Cần Thiết Cho Thi Công Nội Thất
Việc lựa chọn vật liệu là rất quan trọng, ảnh hưởng đến thẩm mỹ và độ bền của không gian. Dưới đây là những vật liệu thường được sử dụng:
- Gỗ: Chất liệu tự nhiên mang lại cảm giác ấm áp, thân thiện.
- Kính: Tạo cảm giác thoáng đãng và sang trọng.
- Kim Loại: Mang lại vẻ hiện đại và năng động.
- Vải: Dùng để trang trí và làm nổi bật không gian.
Quy Trình/Các Bước Thi Công Nội Thất Shop Thời Trang
- Khảo Sát và Lên Kế Hoạch: Nghiên cứu thị trường và lên kế hoạch thiết kế.
- Thiết Kế: Phác thảo ý tưởng và tạo mô hình 3D cho không gian.
- Thi Công: Triển khai các công đoạn thi công theo thiết kế đã được phê duyệt.
- Hoàn Thiện: Thực hiện hoàn thiện nội thất, kiểm tra chất lượng.
Báo Giá/Chi Phí Tham Khảo
Chi phí thiết kế và thi công nội thất shop thời trang thường phụ thuộc vào nhiều yếu tố như diện tích, loại vật liệu và phong cách thiết kế. Một số mức giá tham khảo:
- Thiết kế cơ bản: từ 200.000 VND/m².
- Thi công nội thất: từ 1.200.000 VND/m² trở lên.
- Vật liệu trang trí: tùy theo chất lượng và loại hình.
FAQ – Một Số Câu Hỏi Thường Gặp
- Thiết kế shop thời trang có cần sự sáng tạo không? Có, sự sáng tạo là yếu tố quan trọng giúp shop nổi bật hơn.
- Thời gian thi công nội thất thường mất bao lâu? Thời gian thi công phụ thuộc vào quy mô và yêu cầu thiết kế, thường từ 4-6 tuần.
- Làm thế nào để chọn vật liệu phù hợp? Nên cân nhắc dựa trên phong cách thiết kế và ngân sách.
- Có cần thuê đơn vị thiết kế chuyên nghiệp không? Có, giúp bạn tiết kiệm thời gian và đảm bảo chất lượng.
- Có thể tự thiết kế không? Nếu bạn có kiến thức và kinh nghiệm, có thể tự thiết kế.
CTA Cuối Bài: Vì Sao Nên Đặt Hàng Thiết Kế Thi Công Nội Thất Tại Bluecons
Tại Bluecons, chúng tôi cam kết mang đến bạn những sản phẩm và dịch vụ tốt nhất trong lĩnh vực thiết kế và thi công nội thất shop thời trang. Chúng tôi có đội ngũ thiết kế chuyên nghiệp, giàu kinh nghiệm và luôn tâm huyết với từng sản phẩm mà chúng tôi tạo ra. Đến với chúng tôi, bạn sẽ nhận được:
- Thiết kế độc đáo: Chúng tôi đảm bảo mang đến không gian của bạn sự mới mẻ và ấn tượng.
- Chất lượng hoàn hảo: Mỗi công trình đều được thi công bởi những tay nghề cao và vật liệu chất lượng.
- Dịch vụ khách hàng tận tâm: Chúng tôi luôn sẵn sàng lắng nghe và đáp ứng nhu cầu của bạn.
- Cá nhân hóa sản phẩm: Chúng tôi sẽ làm việc trực tiếp với bạn để hiểu rõ nhu cầu và mong muốn của bạn.
Với những lợi thế này, Bluecons là lựa chọn tốt nhất để bạn hiện thực hóa ý tưởng cho shop thời trang của mình. Hãy liên hệ với chúng tôi ngay hôm nay để nhận giải pháp thiết kế phù hợp nhất!





















